Climatiseur Mitsubishi FDUM100V ne démarre pas
Actuellement
10 516
questions dans le
forum climatisation
10381
Question Réparation Climatisation : Climatiseur Mitsubishi FDUM100V ne démarre pas
Bonjour.
J’ai un climatiseur Mitsubishi FDUM100V avec une télécommande filaire.
Depuis quelque temps, lorsque j’appuie sur le bouton on/off de la télécommande, le voyant s’allume bien, mais au bout de 15 secondes il s’éteint et l’unité ne se met pas en marche.
Si je coupe puis je remets le disjoncteur, j’entends bien que l’unité démarre, puis elle s’arrête après quelques seconde et après ça l'activation de la télécommande ne génère rien.
Sur l'unité extérieure, il y a une LED verte qui continue de clignoter.
J’ai testé les fusibles de l’unité intérieure et extérieure : ils sont OK.
Je ne sais pas quoi tester d’autre.
Merci.
Pour agrandir les images, cliquez dessus.



J’ai un climatiseur Mitsubishi FDUM100V avec une télécommande filaire.
Depuis quelque temps, lorsque j’appuie sur le bouton on/off de la télécommande, le voyant s’allume bien, mais au bout de 15 secondes il s’éteint et l’unité ne se met pas en marche.
Si je coupe puis je remets le disjoncteur, j’entends bien que l’unité démarre, puis elle s’arrête après quelques seconde et après ça l'activation de la télécommande ne génère rien.
Sur l'unité extérieure, il y a une LED verte qui continue de clignoter.
J’ai testé les fusibles de l’unité intérieure et extérieure : ils sont OK.
Je ne sais pas quoi tester d’autre.
Merci.
Pour agrandir les images, cliquez dessus.



08 décembre 2025 à 14:28
Réponse 1 forum dépannage climatisation-climatiseurs
Climatiseur Mitsubishi FDUM100V ne démarre pas
Bonjour.
Attention c'est du Mitsubishi Heavy, et non Mitsubishi électrique.
Il faut laisser la machine faire son travail c'est à dire si la PAC stoppe, ne pas s'amuser à couper et remettre le courant, car au bout de plusieurs essais de démarrage, parfois une vingtaine d'essais de démarrage, si il y a un problème, un défaut devrait apparaitre sur votre commande filaire à un moment donné ou un autre.
Ce code défaut peut nous rapprocher de la panne éventuelle.
Attention c'est du Mitsubishi Heavy, et non Mitsubishi électrique.
Il faut laisser la machine faire son travail c'est à dire si la PAC stoppe, ne pas s'amuser à couper et remettre le courant, car au bout de plusieurs essais de démarrage, parfois une vingtaine d'essais de démarrage, si il y a un problème, un défaut devrait apparaitre sur votre commande filaire à un moment donné ou un autre.
Ce code défaut peut nous rapprocher de la panne éventuelle.
09 décembre 2025 à 18:01
Réponse 2 forum dépannage climatisation-climatiseurs
Climatiseur Mitsubishi FDUM100V ne démarre pas
Bonjour.
La télécommande n'affiche rien, elle s'éteint au bout de 15 secondes sans afficher de code d'erreur.
Je parle uniquement du bouton on/off.
En revanche, je réussis à contrôler la température et les autres réglages lorsque la machine est éteinte.
Le seul code d'erreur que j'arrive à trouver dans l'historique est E34.
Nous avons des doutes concernant le condensateur, nous avons effectué quelques tests trouvés sur YouTube et il semble être hors service, sachant que la climatisation a fonctionné pendant 5300 heures.
Pensez-vous que cela puisse être la cause du problème ?
Merci.
Pour agrandir l'image, cliquez dessus.

La télécommande n'affiche rien, elle s'éteint au bout de 15 secondes sans afficher de code d'erreur.
Je parle uniquement du bouton on/off.
En revanche, je réussis à contrôler la température et les autres réglages lorsque la machine est éteinte.
Le seul code d'erreur que j'arrive à trouver dans l'historique est E34.
Nous avons des doutes concernant le condensateur, nous avons effectué quelques tests trouvés sur YouTube et il semble être hors service, sachant que la climatisation a fonctionné pendant 5300 heures.
Pensez-vous que cela puisse être la cause du problème ?
Merci.
Pour agrandir l'image, cliquez dessus.

10 décembre 2025 à 08:31
Réponse 3 forum dépannage climatisation-climatiseurs
Climatiseur Mitsubishi FDUM100V ne démarre pas
Bonjour.
Tout composant électronique est susceptible de défaillir après un certain temps. Mais pour ce genre de condo chimique, c'est assez rare. Quels tests avez-vous faits sur lui et qui vous font le suspecter
Tout composant électronique est susceptible de défaillir après un certain temps. Mais pour ce genre de condo chimique, c'est assez rare. Quels tests avez-vous faits sur lui et qui vous font le suspecter
10 décembre 2025 à 10:01
Réponse 4 forum dépannage climatisation-climatiseurs
Climatiseur Mitsubishi FDUM100V ne démarre pas
Bonjour.
Je l’ai testé avec un multimètre en mesurant les µF, mais ça ne donne rien. Je l’ai chargé avec une prise 220 V pendant quelques secondes, puis je l’ai déchargé avec un tournevis en le mettant sur ses deux bornes : rien ne se passe, seulement une toute petite étincelle, pas une étincelle correspondant à un condensateur de 2700 µF.
Je vous avoue que je ne suis pas très sûr que ce soit lui qui cause le problème.
Si vous avez des suggestions de tests que je peux faire, n’hésitez pas.
Je l’ai testé avec un multimètre en mesurant les µF, mais ça ne donne rien. Je l’ai chargé avec une prise 220 V pendant quelques secondes, puis je l’ai déchargé avec un tournevis en le mettant sur ses deux bornes : rien ne se passe, seulement une toute petite étincelle, pas une étincelle correspondant à un condensateur de 2700 µF.
Je vous avoue que je ne suis pas très sûr que ce soit lui qui cause le problème.
Si vous avez des suggestions de tests que je peux faire, n’hésitez pas.
10 décembre 2025 à 10:39
Réponse 5 forum dépannage climatisation-climatiseurs
Climatiseur Mitsubishi FDUM100V ne démarre pas
Bonjour.
J'ai changé le condensateur, exactement le même mais rien, même la télécommande ne s'allume plus...des suggestions ?
Merci.
J'ai changé le condensateur, exactement le même mais rien, même la télécommande ne s'allume plus...des suggestions ?
Merci.
18 décembre 2025 à 18:19
Réponse 8 forum dépannage climatisation-climatiseurs
Climatiseur Mitsubishi FDUM100V ne démarre pas
Bonjour.
Désolé, je n'ai pas vu passer votre réponse 4 du 10/12. On ne teste JAMAIS un condensateur CHIMIQUE en lui mettant la tension secteur dessus, car il est polarisé (=il a un sens), une tension inverse le détruit très rapidement, et comme chacun sait le secteur est sinusoïdal, positif 1/100ème de seconde PUIS NEGATIF 1/100ème de seconde... Tester plutôt en ohmmètre après avoir court-circuité les cosses, la résistance doit être faible, puis très vite monter jusqu'à l'infini. Mais bon, vous savez qu'il n'est pas impliqué vu que le neuf n'amène rien.
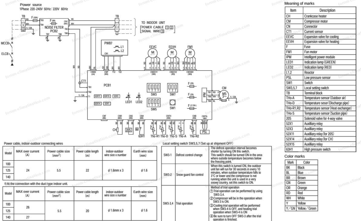
D'après le schéma, si vous n'avez rien en 1/2 vers l'UI, c'est que la carte PCB2 coupe le courant. Je suppose qu'il arrive bien à sa gauche sur TB3/TB4... Faites en une photo, de préférence recto verso, pour que je vous dise quoi tester dessus.
Désolé, je n'ai pas vu passer votre réponse 4 du 10/12. On ne teste JAMAIS un condensateur CHIMIQUE en lui mettant la tension secteur dessus, car il est polarisé (=il a un sens), une tension inverse le détruit très rapidement, et comme chacun sait le secteur est sinusoïdal, positif 1/100ème de seconde PUIS NEGATIF 1/100ème de seconde... Tester plutôt en ohmmètre après avoir court-circuité les cosses, la résistance doit être faible, puis très vite monter jusqu'à l'infini. Mais bon, vous savez qu'il n'est pas impliqué vu que le neuf n'amène rien.
D'après le schéma, si vous n'avez rien en 1/2 vers l'UI, c'est que la carte PCB2 coupe le courant. Je suppose qu'il arrive bien à sa gauche sur TB3/TB4... Faites en une photo, de préférence recto verso, pour que je vous dise quoi tester dessus.
19 décembre 2025 à 11:52
Réponse 10 forum dépannage climatisation-climatiseurs
Climatiseur Mitsubishi FDUM100V ne démarre pas
A la réflexion, quelque chose ne colle pas dans votre récit. La télécommande est alimentée par la carte de l'UI du gainable, qui reçoit le secteur via les fils 1 et 2. Vous dites en haut que la TC s'allume un temps, c'est donc que le secteur arrive bien sur la carte via 1 et 2. Confirmez-vous que ces fils ne portent pas de tension (à mesurer en AC, pas en DC)
S'il y a du 230VAC sur eux, alors les 2 sorties du transfo de l'UI doivent donner 2 tensions différentes, par ex 12VAC et 24VAC. Qu'y mesurez-vous (2 fils rouges et 2 marron)?
De même, quelle tension DC mesurez-vous sur les 2 fils qui arrivent à la TC? Quand elle est "vivante", et quand elle est éteinte. En général, c'est au moins 20VDC.
S'il y a du 230VAC sur eux, alors les 2 sorties du transfo de l'UI doivent donner 2 tensions différentes, par ex 12VAC et 24VAC. Qu'y mesurez-vous (2 fils rouges et 2 marron)?
De même, quelle tension DC mesurez-vous sur les 2 fils qui arrivent à la TC? Quand elle est "vivante", et quand elle est éteinte. En général, c'est au moins 20VDC.
19 décembre 2025 à 18:03
Réponse 11 forum dépannage climatisation-climatiseurs
Climatiseur Mitsubishi FDUM100V ne démarre pas
Bonjour,
Je vous explique la situation :
lorsque nous avons changé le condensateur, l’appareil ne s’allume plus, ni la TC ni l’UI.
Ensuite, j’ai remis l’ancien condensateur et je me suis retrouvé à l’état initial :
La télécommande s’allume pendant 5 secondes puis s’éteint.
L’UI s’allume correctement (la LED verte clignote).
J’ai bien 230 V à l’entrée de l’UE (la LED verte clignote également) ainsi que 230 V qui arrive à l’UI.
Aux bornes de la télécommande, j’ai 16V que ce soit pendant qu'elle est allumée (5 sec) ou éteinte c'est la même chose.
Entre les bornes marron qui sortent du transfo de l'UI j'ai 18V et entre les rouge j'ai 23V.
Pour rectifier, je vous joins les bons schémas de l’UE et de l’UI.
En vous remerciant par avance.
Pour agrandir les images, cliquez dessus.






Je vous explique la situation :
lorsque nous avons changé le condensateur, l’appareil ne s’allume plus, ni la TC ni l’UI.
Ensuite, j’ai remis l’ancien condensateur et je me suis retrouvé à l’état initial :
La télécommande s’allume pendant 5 secondes puis s’éteint.
L’UI s’allume correctement (la LED verte clignote).
J’ai bien 230 V à l’entrée de l’UE (la LED verte clignote également) ainsi que 230 V qui arrive à l’UI.
Aux bornes de la télécommande, j’ai 16V que ce soit pendant qu'elle est allumée (5 sec) ou éteinte c'est la même chose.
Entre les bornes marron qui sortent du transfo de l'UI j'ai 18V et entre les rouge j'ai 23V.
Pour rectifier, je vous joins les bons schémas de l’UE et de l’UI.
En vous remerciant par avance.
Pour agrandir les images, cliquez dessus.






20 décembre 2025 à 15:48
Réponse 12 forum dépannage climatisation-climatiseurs
Climatiseur Mitsubishi FDUM100V ne démarre pas
Bonjour.
Dans le passé, on a eu un internaute dont la PAC (et sa télécommande) faisait un peu n'importe quoi, et le problème était dû à un condensateur chimique dégradé dans l'alim basse tension. Question 4289. Un autre a eu la même panne, mais j'ai la flemme de le rechercher. :-)
Pour essayer de corréler votre panne avec l'autre, faites les mesures suivantes, avec une précision de 0.1V (par ex 18.3V et non 18V) :
Câble du transfo débranché, mesurez entre les fils marrons, et entre les fils rouges. Tensions AC.
Câble rebranché, mesurez entre les fils marrons, et entre les fils rouges. Tensions AC.
Câble toujours branché, mesurez les tensions DC sur les 3 condos en enfilade près des radiateurs, le gros, le moyen et le petit. Sur chaque régulateur à 3 pattes (montés sur radiateurs), mesurez aussi les tensions DC entre la patte centrale et la gauche, et entre la patte centrale et la droite. Même chose pour le régulateur qui n'est pas monté sur radiateur, proche du "petit" condo. Appelez-les "gros radiateur", "petit radiateur" et "sans radiateur". Qu'est-il marqué sur ces 3 pièces? A priori les marquages doivent contenir "78xx", xx pouvant être 05, 12, 15, 18...
Dans le passé, on a eu un internaute dont la PAC (et sa télécommande) faisait un peu n'importe quoi, et le problème était dû à un condensateur chimique dégradé dans l'alim basse tension. Question 4289. Un autre a eu la même panne, mais j'ai la flemme de le rechercher. :-)
Pour essayer de corréler votre panne avec l'autre, faites les mesures suivantes, avec une précision de 0.1V (par ex 18.3V et non 18V) :
Câble du transfo débranché, mesurez entre les fils marrons, et entre les fils rouges. Tensions AC.
Câble rebranché, mesurez entre les fils marrons, et entre les fils rouges. Tensions AC.
Câble toujours branché, mesurez les tensions DC sur les 3 condos en enfilade près des radiateurs, le gros, le moyen et le petit. Sur chaque régulateur à 3 pattes (montés sur radiateurs), mesurez aussi les tensions DC entre la patte centrale et la gauche, et entre la patte centrale et la droite. Même chose pour le régulateur qui n'est pas monté sur radiateur, proche du "petit" condo. Appelez-les "gros radiateur", "petit radiateur" et "sans radiateur". Qu'est-il marqué sur ces 3 pièces? A priori les marquages doivent contenir "78xx", xx pouvant être 05, 12, 15, 18...
21 décembre 2025 à 08:46
Réponse 13 forum dépannage climatisation-climatiseurs
Climatiseur Mitsubishi FDUM100V ne démarre pas
Bonjour.
Merci pour votre retour. Je procéderai aux mesures ce soir.
Pour être sûr, ce sont bien ces 3 condensateurs et ces trois régulateurs qu’il faut vérifier ?
Les mesures sont-elles bien à effectuer au verso de la carte ? (pas pour le petit régulateur)
Merci d’avance.
Pour agrandir l'image, cliquez dessus.

Merci pour votre retour. Je procéderai aux mesures ce soir.
Pour être sûr, ce sont bien ces 3 condensateurs et ces trois régulateurs qu’il faut vérifier ?
Les mesures sont-elles bien à effectuer au verso de la carte ? (pas pour le petit régulateur)
Merci d’avance.
Pour agrandir l'image, cliquez dessus.

23 décembre 2025 à 11:08
Réponse 14 forum dépannage climatisation-climatiseurs
Climatiseur Mitsubishi FDUM100V ne démarre pas
Les condos : oui.
Le régulateur sans radiateur est à gauche du petit condo. Le haut de son boîtier a un trou pour le fixer sur un radiateur, inutilisé ici. Votre flèche montre un optocoupleur à 4 pattes.
Le régulateur sans radiateur est à gauche du petit condo. Le haut de son boîtier a un trou pour le fixer sur un radiateur, inutilisé ici. Votre flèche montre un optocoupleur à 4 pattes.
23 décembre 2025 à 18:04
Réponse 15 forum dépannage climatisation-climatiseurs
Climatiseur Mitsubishi FDUM100V ne démarre pas
Bonjour.
Je reviens vers vous suite aux tests.
Les deux câbles rouges sortant du transformateur sont à 3,9 V, alors qu’auparavant on était à 23 V.
Le câble marron est à 4,4 V, alors qu’on était auparavant à 18 V.
Concernant les condensateurs :
Gros condensateur : 1,7 V
Condensateur moyen : 1,1 V
Petit condensateur : 1,6 V
La référence du régulateur non monté sur radiateur, à 3 pattes, est KLA7805A P1733 :
Tension 2 : 4,84 V
Tension 1 : 11,93 V
Petit radiateur (7818A) :
Tension 1 : 18 V
Tension 2 : impossible à mesurer, l’appareil affiche en permanence quelques mV
Gros radiateur (7812A) :
Tension 1 : impossible à mesurer, seulement quelques 341 mV
Tension 2 : 23 V
Honnêtement, je suis perdu. Je ne sais pas si le problème vient des condensateurs, sachant que les mesures au niveau des régulateurs varient beaucoup et ne sont pas stables.
Mes connaissances en électronique sont limitées, et les réparateurs de pompes à chaleur, simplement en décrivant le problème, veulent tout changer.
Connaîtriez-vous par hasard quelqu’un de passionné dans les Bouches-du-Rhône ?
D'autres tests que je peux faire ? Je peux démonter la carte ?
L'accès est très très difficile dans mes comble la ou se trouve cette carte....
Merci beaucoup pour votre aide.
Je reviens vers vous suite aux tests.
Les deux câbles rouges sortant du transformateur sont à 3,9 V, alors qu’auparavant on était à 23 V.
Le câble marron est à 4,4 V, alors qu’on était auparavant à 18 V.
Concernant les condensateurs :
Gros condensateur : 1,7 V
Condensateur moyen : 1,1 V
Petit condensateur : 1,6 V
La référence du régulateur non monté sur radiateur, à 3 pattes, est KLA7805A P1733 :
Tension 2 : 4,84 V
Tension 1 : 11,93 V
Petit radiateur (7818A) :
Tension 1 : 18 V
Tension 2 : impossible à mesurer, l’appareil affiche en permanence quelques mV
Gros radiateur (7812A) :
Tension 1 : impossible à mesurer, seulement quelques 341 mV
Tension 2 : 23 V
Honnêtement, je suis perdu. Je ne sais pas si le problème vient des condensateurs, sachant que les mesures au niveau des régulateurs varient beaucoup et ne sont pas stables.
Mes connaissances en électronique sont limitées, et les réparateurs de pompes à chaleur, simplement en décrivant le problème, veulent tout changer.
Connaîtriez-vous par hasard quelqu’un de passionné dans les Bouches-du-Rhône ?
D'autres tests que je peux faire ? Je peux démonter la carte ?
L'accès est très très difficile dans mes comble la ou se trouve cette carte....
Merci beaucoup pour votre aide.
24 janvier 2026 à 19:52
Réponse 16 forum dépannage climatisation-climatiseurs
Climatiseur Mitsubishi FDUM100V ne démarre pas
Bonjour à toutes et à tous.
Notre forum vous a aidé, aidez le forum !
Pour nous permettre de continuer à vous répondre, que les acteurs bénévoles de ces forums soient toujours à votre écoute, si vous pouvez, faites un don sur la cagnotte solidaire de Bricovidéo. leetchi.com pour soutenir les Forums
Si vous avez déjà participé à la cagnotte, nous vous en remercions.
Cordialement, l'équipe du forum dépannage climatisation.
Notre forum vous a aidé, aidez le forum !
Pour nous permettre de continuer à vous répondre, que les acteurs bénévoles de ces forums soient toujours à votre écoute, si vous pouvez, faites un don sur la cagnotte solidaire de Bricovidéo. leetchi.com pour soutenir les Forums
Si vous avez déjà participé à la cagnotte, nous vous en remercions.
Cordialement, l'équipe du forum dépannage climatisation.
24 janvier 2026 à 20:07
Réponse 17 forum dépannage climatisation-climatiseurs
Climatiseur Mitsubishi FDUM100V ne démarre pas
Bonjour.
OK pour vos mesures, qui semblent montrer que c'est un peu le chaos dans votre UI... J'avais demandé que vous mesuriez les sorties du transfo d'une part câbles déconnectés, et d'autre part reconnectés. J'ai l'impression que les mesures déconnectées n'ont pas été faites. Elles sont importantes parce que vous pourriez avoir un court-circuit DANS le transfo, ce qui donnerait des tensions de sortie dégradées, même câbles déconnectés.
J'espère aussi que vous avez scrupuleusement respecté les consignes de mesures, à savoir AC (alternatif) ou DC (continu) suivant les cas, car un mauvais réglage du multimètre induit des erreurs de mesures qui font partir sur de mauvaises pistes. En effet, des tensions alternatives de 4V ne peuvent donner des tensions continues de 12 et 23V après redressement. Je pense qu'il serait bon que vous refassiez toutes les mesures, car le passionné que je suis les trouve incohérentes... :-)
Si un problème de tension se confirme, la cause pourrait être le transfo, un pont redresseur, un régulateur 78xx, ou un circuit de la carte qui s'est mis en court-circuit... voire autre chose..
OK pour vos mesures, qui semblent montrer que c'est un peu le chaos dans votre UI... J'avais demandé que vous mesuriez les sorties du transfo d'une part câbles déconnectés, et d'autre part reconnectés. J'ai l'impression que les mesures déconnectées n'ont pas été faites. Elles sont importantes parce que vous pourriez avoir un court-circuit DANS le transfo, ce qui donnerait des tensions de sortie dégradées, même câbles déconnectés.
J'espère aussi que vous avez scrupuleusement respecté les consignes de mesures, à savoir AC (alternatif) ou DC (continu) suivant les cas, car un mauvais réglage du multimètre induit des erreurs de mesures qui font partir sur de mauvaises pistes. En effet, des tensions alternatives de 4V ne peuvent donner des tensions continues de 12 et 23V après redressement. Je pense qu'il serait bon que vous refassiez toutes les mesures, car le passionné que je suis les trouve incohérentes... :-)
Si un problème de tension se confirme, la cause pourrait être le transfo, un pont redresseur, un régulateur 78xx, ou un circuit de la carte qui s'est mis en court-circuit... voire autre chose..
25 janvier 2026 à 11:57
Réponse 18 forum dépannage climatisation-climatiseurs
Climatiseur Mitsubishi FDUM100V ne démarre pas
Bonjour Monsieur.
Je commence par vous remercier pour le temps que vous consacrez à ce forum pour aider des gens comme moi.
Je m’apprêtais à faire les mesures cet après-midi et, ce matin, dans une brocante, comme par hasard, je suis tombé sur un équipement YAC qui contenait exactement la même carte (même référence, même boîtier, mêmes composants…), avec la même télécommande et un transformateur. Le monsieur m’a confirmé que cela fonctionnait bien.
Je n’ai pas hésité à acheter cette partie électrique (30 euros).
Je me suis dit que la carte allait peut-être fonctionner, ou que le transformateur était peut-être la cause du problème, ou qu’au pire je pourrais me servir de cette carte pour remplacer les composants défaillants sur l’ancienne.
Qu’en pensez-vous ?
Comment puis-je la tester et par quoi dois-je commencer ?
Est-ce que je débranche l’ancienne et je branche la nouvelle ?
Est-ce que je teste la télécommande ?
Je suis un peu perdu, et l’idéal serait que cette nouvelle carte fonctionne sans avoir besoin de dessouder et souder des composants sur l’ancienne. Je ne suis pas très doué et j’ai peur de faire un court-circuit.
Pour information, il n’y a que les switchs sur la carte qui ne sont pas dans la bonne position :
Il faut donc les remettre comme sur l’ancienne carte.
Pour agrandir les images, cliquez dessus.




Je commence par vous remercier pour le temps que vous consacrez à ce forum pour aider des gens comme moi.
Je m’apprêtais à faire les mesures cet après-midi et, ce matin, dans une brocante, comme par hasard, je suis tombé sur un équipement YAC qui contenait exactement la même carte (même référence, même boîtier, mêmes composants…), avec la même télécommande et un transformateur. Le monsieur m’a confirmé que cela fonctionnait bien.
Je n’ai pas hésité à acheter cette partie électrique (30 euros).
Je me suis dit que la carte allait peut-être fonctionner, ou que le transformateur était peut-être la cause du problème, ou qu’au pire je pourrais me servir de cette carte pour remplacer les composants défaillants sur l’ancienne.
Qu’en pensez-vous ?
Comment puis-je la tester et par quoi dois-je commencer ?
Est-ce que je débranche l’ancienne et je branche la nouvelle ?
Est-ce que je teste la télécommande ?
Je suis un peu perdu, et l’idéal serait que cette nouvelle carte fonctionne sans avoir besoin de dessouder et souder des composants sur l’ancienne. Je ne suis pas très doué et j’ai peur de faire un court-circuit.
Pour information, il n’y a que les switchs sur la carte qui ne sont pas dans la bonne position :
Il faut donc les remettre comme sur l’ancienne carte.
Pour agrandir les images, cliquez dessus.




31 janvier 2026 à 13:26
Réponse 19 forum dépannage climatisation-climatiseurs
Climatiseur Mitsubishi FDUM100V ne démarre pas
Bonjour.
Bon réflexe que d'avoir acheté ce matériel pour si peu cher. Avant toute intervention, commencez par mesurer les sorties du transfo (le vôtre!) pour évacuer l'hypothèse d'un problème dedans. Si OK, alors rebranchez et essayez quand même de refaire les mesures de votre réponse 15, car je soupçonne des erreurs de mesure.
Seulement après, et si votre transfo était vu bon, alors changez la carte et voyez ce que ça donne au niveau fonctionnement. Si la panne est toujours présente, alors faites les mêmes mesures sur cette nouvelle carte.
Bon réflexe que d'avoir acheté ce matériel pour si peu cher. Avant toute intervention, commencez par mesurer les sorties du transfo (le vôtre!) pour évacuer l'hypothèse d'un problème dedans. Si OK, alors rebranchez et essayez quand même de refaire les mesures de votre réponse 15, car je soupçonne des erreurs de mesure.
Seulement après, et si votre transfo était vu bon, alors changez la carte et voyez ce que ça donne au niveau fonctionnement. Si la panne est toujours présente, alors faites les mêmes mesures sur cette nouvelle carte.
31 janvier 2026 à 16:16
Réponse 20 forum dépannage climatisation-climatiseurs
Climatiseur Mitsubishi FDUM100V ne démarre pas
Bonjour,
J’ai testé le transformateur : même tension branché ou débranché, rouge 18 et maron 23 V. J’ai changé la carte, mais le comportement est identique : la LED verte clignote sur la carte et la télécommande s’éteint au bout de quelques secondes.
J’ai également changé le transformateur par précaution, mais sans résultat.
Mon fils vient de m’avouer que, juste avant la panne, il essayait de programmer la télécommande. Il l’a éteinte et rallumée plusieurs fois (plus d’une dizaine de fois) et c’est juste après que la panne est apparue.
Pendant les quelques secondes où la télécommande reste allumée, j’ai pu accéder au code d’erreur : E001, sotop. D’après mes recherches sur Google, cela correspond à un problème de communication entre l’UE et l’UI.
Je commence donc à soupçonner l’UE, d’autant et pour info il y a bien 235 V qui remontent de l’UE vers l’UI.
Merci.
Pour agrandir l'image, cliquez dessus.

J’ai testé le transformateur : même tension branché ou débranché, rouge 18 et maron 23 V. J’ai changé la carte, mais le comportement est identique : la LED verte clignote sur la carte et la télécommande s’éteint au bout de quelques secondes.
J’ai également changé le transformateur par précaution, mais sans résultat.
Mon fils vient de m’avouer que, juste avant la panne, il essayait de programmer la télécommande. Il l’a éteinte et rallumée plusieurs fois (plus d’une dizaine de fois) et c’est juste après que la panne est apparue.
Pendant les quelques secondes où la télécommande reste allumée, j’ai pu accéder au code d’erreur : E001, sotop. D’après mes recherches sur Google, cela correspond à un problème de communication entre l’UE et l’UI.
Je commence donc à soupçonner l’UE, d’autant et pour info il y a bien 235 V qui remontent de l’UE vers l’UI.
Merci.
Pour agrandir l'image, cliquez dessus.

07 février 2026 à 16:13
Réponse 21 forum dépannage climatisation-climatiseurs
Climatiseur Mitsubishi FDUM100V ne démarre pas
Bonjour.
Je reviens vers vous avec la solution à mon problème, et si cela peut aider quelqu’un dans le futur avec ce mystérieux problème de télécommande qui s’éteignait toute seule au bout de 15 secondes sans que la climatisation ne se déclenche.
Solution : un simple reset de la télécommande en appuyant simultanément sur les 3 boutons du dessous pendant quelques secondes (après 2 mois sans clim )
La télécommande s’est mise en mode préparation, puis la clim s’est déclenchée.
Je vous avoue que je ne comprends toujours pas l’origine du problème, surtout que j’ai changé la télécommande, la carte intérieure et le transformateur, et malgré cela le problème de la télécommande apparaissait toujours jusqu’au reset.
Apparemment, la climatisation s’était mise en mode sécurité ou quelque chose comme ça.
Bon, maintenant j’ai une carte, une télécommande et un transformateur de rechange, au cas où ils tomberaient en panne un jour, heureusement que je ne les ai pas achetés cher.

Ma question maintenant : j’ai laissé la nouvelle carte et le transformateur achetés en brocante.
Dois-je remettre l’ancienne carte ou laisser comme ça ?
Je vous remercie pour votre aide.
Je reviens vers vous avec la solution à mon problème, et si cela peut aider quelqu’un dans le futur avec ce mystérieux problème de télécommande qui s’éteignait toute seule au bout de 15 secondes sans que la climatisation ne se déclenche.
Solution : un simple reset de la télécommande en appuyant simultanément sur les 3 boutons du dessous pendant quelques secondes (après 2 mois sans clim )
La télécommande s’est mise en mode préparation, puis la clim s’est déclenchée.
Je vous avoue que je ne comprends toujours pas l’origine du problème, surtout que j’ai changé la télécommande, la carte intérieure et le transformateur, et malgré cela le problème de la télécommande apparaissait toujours jusqu’au reset.
Apparemment, la climatisation s’était mise en mode sécurité ou quelque chose comme ça.
Bon, maintenant j’ai une carte, une télécommande et un transformateur de rechange, au cas où ils tomberaient en panne un jour, heureusement que je ne les ai pas achetés cher.

Ma question maintenant : j’ai laissé la nouvelle carte et le transformateur achetés en brocante.
Dois-je remettre l’ancienne carte ou laisser comme ça ?
Je vous remercie pour votre aide.
10 février 2026 à 10:16
Réponse 23 forum dépannage climatisation-climatiseurs
Climatiseur Mitsubishi FDUM100V ne démarre pas
Bonjour.
Merci pour le retour, ce type de manipulation ne s'invente pas... De mémoire, ce genre de TC possède un "supercondensateur", genre de condo à forte capacité, qui se comporte un peu comme une batterie... qui se décharge. Il permet de garder les réglages disons quelques jours, mais pas des mois, donc cela expliquerait le comportement de celle achetée récemment (débranchée longtemps). Pour la vôtre, le fiston aura probablement fait une combinaison de touches inadéquate.
Si j'étais vous, je ne toucherais à rien et laisserais la machine telle qu'elle est en ce moment.
Merci pour le retour, ce type de manipulation ne s'invente pas... De mémoire, ce genre de TC possède un "supercondensateur", genre de condo à forte capacité, qui se comporte un peu comme une batterie... qui se décharge. Il permet de garder les réglages disons quelques jours, mais pas des mois, donc cela expliquerait le comportement de celle achetée récemment (débranchée longtemps). Pour la vôtre, le fiston aura probablement fait une combinaison de touches inadéquate.
Si j'étais vous, je ne toucherais à rien et laisserais la machine telle qu'elle est en ce moment.
10 février 2026 à 15:42











