Conseils dimensionnement PAC AIR AIR
Actuellement
10 510
questions dans le
forum climatisation
10372
Questions Forum Climatiseurs : Conseils dimensionnement PAC AIR AIR
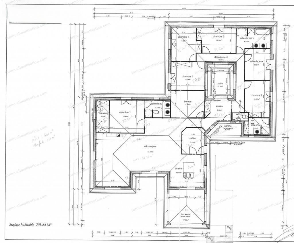
Bonjour.
Nous souhaitons remplacer nos radiateurs à inertie par une PAC Air Air en gainable.
- Maison de 200m² de plein pied situé proche Bordeaux (Température de réf -5°C) sur vide sanitaire - Hauteur sous plafond 2.5m
-Année construction 2009 avec nouvelle isolation des combles en 2020 (32cm de laine de roche soufflée (R-7 m² k/w) Rockwool Jet Rock 2
-Nous chauffons habituellement à 21° la pièce de vie et 18° dans les chambres.
Nous avons entre autre le devis suivant (voir photo) en Mitsubishi.
Zone jour : Séjour/salon 54m² + cuisine 14m² + Chambre 14,5m²+ cellier non chauffé 7m²
Zone nuit : Bureau 11m² + 5 chambres entre 10 et 12m² chacune + couloir 10m² + entrée 9m²
Qu'en pensez vous en terme de dimensionnement surtout et je ne comprend pas trop quel est le système de régulation inclus. Est-ce Altech ?
Nous avons ensuite un autre devis quasi identique mais en Atlantic avec régulation Shogun.
Du coup nous hésitons également vis à vis du choix entre les 2 marques...
Pour agrandir les images, cliquez dessus.


Nous souhaitons remplacer nos radiateurs à inertie par une PAC Air Air en gainable.
- Maison de 200m² de plein pied situé proche Bordeaux (Température de réf -5°C) sur vide sanitaire - Hauteur sous plafond 2.5m
-Année construction 2009 avec nouvelle isolation des combles en 2020 (32cm de laine de roche soufflée (R-7 m² k/w) Rockwool Jet Rock 2
-Nous chauffons habituellement à 21° la pièce de vie et 18° dans les chambres.
Nous avons entre autre le devis suivant (voir photo) en Mitsubishi.
Zone jour : Séjour/salon 54m² + cuisine 14m² + Chambre 14,5m²+ cellier non chauffé 7m²
Zone nuit : Bureau 11m² + 5 chambres entre 10 et 12m² chacune + couloir 10m² + entrée 9m²
Qu'en pensez vous en terme de dimensionnement surtout et je ne comprend pas trop quel est le système de régulation inclus. Est-ce Altech ?
Nous avons ensuite un autre devis quasi identique mais en Atlantic avec régulation Shogun.
Du coup nous hésitons également vis à vis du choix entre les 2 marques...
Pour agrandir les images, cliquez dessus.


04 décembre 2025 à 17:05








