Câblage thermostat Netatmo sur Daikin EKHBRD014DY17
Actuellement
10 381
questions dans le
forum climatisation
10349
Questions Branchement Climatisation : Câblage thermostat Netatmo sur Daikin EKHBRD014DY17
Bonjour.
Je souhaite brancher mon thermostat Netatmo, mais je ne comprends pas le câblage.
Actuellement, j’ai le thermostat basique de Daikin branché avec deux câbles sur P1/P2 (un marron et un bleu), connectés sur X3M.
Je n’ai aucune expérience en la matière.
Après avoir contacté Netatmo, il semble que ma PAC nécessite une PCB supplémentaire, que j’ai achetée (carte électronique EKRP1AHT).
Je vous joins des photos de la carte EKRP1AHT et de mon installation actuelle.
Mes questions :
Ai-je vraiment besoin de la EKRP1AHT selon vous ? Si oui, comment la brancher ?
Où brancher les câbles gris et noir du thermostat Netatmo ?
Aujourd’hui, mon thermostat Daikin n’a que 2 câbles, alors que celui de Netatmo en a 4.
Merci beaucoup pour votre aide.
Pour agrandir les images, cliquez dessus.




Je souhaite brancher mon thermostat Netatmo, mais je ne comprends pas le câblage.
Actuellement, j’ai le thermostat basique de Daikin branché avec deux câbles sur P1/P2 (un marron et un bleu), connectés sur X3M.
Je n’ai aucune expérience en la matière.
Après avoir contacté Netatmo, il semble que ma PAC nécessite une PCB supplémentaire, que j’ai achetée (carte électronique EKRP1AHT).
Je vous joins des photos de la carte EKRP1AHT et de mon installation actuelle.
Mes questions :
Ai-je vraiment besoin de la EKRP1AHT selon vous ? Si oui, comment la brancher ?
Où brancher les câbles gris et noir du thermostat Netatmo ?
Aujourd’hui, mon thermostat Daikin n’a que 2 câbles, alors que celui de Netatmo en a 4.
Merci beaucoup pour votre aide.
Pour agrandir les images, cliquez dessus.




25 novembre 2025 à 23:39
Réponse 1 forum-climatisation-climatiseurs
Câblage thermostat Netatmo sur Daikin EKHBRD014DY17
Bonjour.
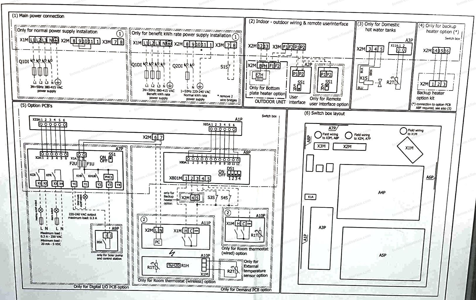
Avez-vous le connecteur qui va de votre nouvelle carte EKH... qui doit se brancher sur X80 de cette carte et X85A de la carte de votre UI ?
Avez-vous le connecteur qui va de votre nouvelle carte EKH... qui doit se brancher sur X80 de cette carte et X85A de la carte de votre UI ?
26 novembre 2025 à 18:03
Réponse 2 forum-climatisation-climatiseurs
Câblage thermostat Netatmo sur Daikin EKHBRD014DY17
Bonjour @PL.
Je n'ai pas encore reçu la carte, elle devrait arriver demain, mais effectivement dans le colis j'ai bien un câble blanc.
Vous dites qu'il faut que je connecte la carte carte EKH.., en branchant le X80 de cette carte sur le x85A de l'UI ?
Est-ce le seul branchement que j'ai a faire ?
Savez-vous ensuite quel configuration je dois mettre sur le DS1, et quel entrée utiliser pour mon Netatmo ?
Merci.

Je n'ai pas encore reçu la carte, elle devrait arriver demain, mais effectivement dans le colis j'ai bien un câble blanc.
Vous dites qu'il faut que je connecte la carte carte EKH.., en branchant le X80 de cette carte sur le x85A de l'UI ?
Est-ce le seul branchement que j'ai a faire ?
Savez-vous ensuite quel configuration je dois mettre sur le DS1, et quel entrée utiliser pour mon Netatmo ?
Merci.

26 novembre 2025 à 18:12
Réponse 3 forum-climatisation-climatiseurs
Câblage thermostat Netatmo sur Daikin EKHBRD014DY17
Bonjour, attendons de recevoir votre colis.
27 novembre 2025 à 09:24
Réponse 4 forum-climatisation-climatiseurs
Câblage thermostat Netatmo sur Daikin EKHBRD014DY17
Bonjour val24.
Si vous en avez la possibilité, pourriez-vous nous faire parvenir une photo de la carte EKRP1AHT ainsi qu'une photo du câble blanc.
Cordialement. Romana.
Si vous en avez la possibilité, pourriez-vous nous faire parvenir une photo de la carte EKRP1AHT ainsi qu'une photo du câble blanc.
Cordialement. Romana.
27 novembre 2025 à 11:51
Réponse 6 forum-climatisation-climatiseurs
Câblage thermostat Netatmo sur Daikin EKHBRD014DY17
Bonjour val24.
Merci pour les photos.
Cordialement. Romana.
Merci pour les photos.
Cordialement. Romana.
28 novembre 2025 à 14:29
Réponse 7 forum-climatisation-climatiseurs
Câblage thermostat Netatmo sur Daikin EKHBRD014DY17
Bonjour à tous.
Je suis un peu dans votre cas mais moi je cherche la référence du câble plat (blanc)
J'ai bien la carte mais pas le bon câble.
Merci à vous.


Je suis un peu dans votre cas mais moi je cherche la référence du câble plat (blanc)
J'ai bien la carte mais pas le bon câble.
Merci à vous.


28 novembre 2025 à 16:42
Réponse 8 forum-climatisation-climatiseurs
Câblage thermostat Netatmo sur Daikin EKHBRD014DY17
Bonjour.
Attention tout câblage décâblage doit s'effectuer hors tension le câble blanc plat se branche entre X85A de la carte A1P, et X80A de la carte EKRP1AHT, débrancher les fils P1-P2 de l'ancien thermostat qui ne servent plus à rien, brancher les fils gris et noir de votre thermostat externe Netamo en 1 et 2 de la carte EKRP1AHT.
C'est un contact sec, coupe le fonctionnement une fois la température atteinte.
Brancher les fils bleu et marron 230V sur une alimentation à part de la clim.
Ça devrait fonctionner comme cela.
Attention tout câblage décâblage doit s'effectuer hors tension le câble blanc plat se branche entre X85A de la carte A1P, et X80A de la carte EKRP1AHT, débrancher les fils P1-P2 de l'ancien thermostat qui ne servent plus à rien, brancher les fils gris et noir de votre thermostat externe Netamo en 1 et 2 de la carte EKRP1AHT.
C'est un contact sec, coupe le fonctionnement une fois la température atteinte.
Brancher les fils bleu et marron 230V sur une alimentation à part de la clim.
Ça devrait fonctionner comme cela.
29 novembre 2025 à 11:03
Réponse 9 forum-climatisation-climatiseurs
Câblage thermostat Netatmo sur Daikin EKHBRD014DY17
Merci pour votre réponse, ça m’éclaire déjà pas mal.
J’ai juste quelques points à valider pour être sûr de ne pas faire de bêtises :
Alimentation 230 V.
Vous indiquez qu’il faut alimenter le module avec “une alimentation à part”.
En regardant la doc de ma PAC (EKHBRD014DY17), j’ai vu qu’il y a un bornier X1M qui fournit déjà le 230 V pour les accessoires.
La conso du relais Netatmo étant très faible, est-ce que je peux prendre les fils bleu et marron et les brancher directement sur X1M, ou vous déconseillez de le faire ?
(Ça éviterait de tirer une ligne dédiée juste pour ça).
J’ai juste quelques points à valider pour être sûr de ne pas faire de bêtises :
Alimentation 230 V.
Vous indiquez qu’il faut alimenter le module avec “une alimentation à part”.
En regardant la doc de ma PAC (EKHBRD014DY17), j’ai vu qu’il y a un bornier X1M qui fournit déjà le 230 V pour les accessoires.
La conso du relais Netatmo étant très faible, est-ce que je peux prendre les fils bleu et marron et les brancher directement sur X1M, ou vous déconseillez de le faire ?
(Ça éviterait de tirer une ligne dédiée juste pour ça).
30 novembre 2025 à 21:27
Réponse 10 forum-climatisation-climatiseurs
Câblage thermostat Netatmo sur Daikin EKHBRD014DY17
Bonjour.
C'était par précaution, sur l'alim général sur le bornier de votre UI, 1=N(bleu), 2= Ph (marron),3= Com, on branche bien une pompe de relevage.
Alors oui, si vous voulez brancher votre thermostat.
C'était par précaution, sur l'alim général sur le bornier de votre UI, 1=N(bleu), 2= Ph (marron),3= Com, on branche bien une pompe de relevage.
Alors oui, si vous voulez brancher votre thermostat.
01 décembre 2025 à 10:59
Pour poser une réponse, vous devez être identifié.
Si vous ne possédez pas de compte, créez-en un ICI.
Si vous ne possédez pas de compte, créez-en un ICI.
Questions apparentées dans le forum Climatisation
- 1. Câblage thermostat Netatmo sur pompe à chaleur Daikin Altherma
- N°8094 : Bonjour. J'ai une pompe à chaleur Daikin Altherma (sans thermostat installé). Je souhaite installé le thermostat connecté de Netatmo mais je me perds dans le câblage. Pourriez vous m'indiquez svp le bon branchement à...
- 2. Problème cycle pompe à chaleur bi split Daikin
- N°2323 : Bonjour à tous. Problème pompe à chaleur réponse 1 à 49. La première partie de ce topic est disponible en suivant ce lien : Problème cycle court PAC Daikin air air Les dates de ce topic ne sont plus valides car, j'ai...
- 3. Câblage thermostat pompe à chaleur Daikin Altherma
- N°7434 : Bonjour à tous. J’ai un pompe à chaleur Daikin Altherma (chauffage au sol). L’ ancien câblage avait : Le port 1(heating) sur le H du thermostat Le port 3 (commun? Avec une adaptation électrique ?) sur le C du...
- 4. Remplacer thermostat Daikin BRC1D528 par thermostat connecté
- N°5090 : Bonjour. Est-ce qu'il est possible de remplacer un thermostat Daikin BRC1D528 par un thermostat connecté type Netatmo ? Installation gainée. Merci par avance pour vos conseils.
- 5. Clim Daikin annulation mode de correction câblage ou reset usine
- N°7482 : Bonjour à tous. J'ai une climatisation bi-split en service depuis janvier 2021 (presque un an). En résumé : un des 2 splits fonctionne de manière erratique. Je soupçonne une erreur de câblage mais je ne parviens pas à...
- 6. Code erreur UA PAC Daikin
- N°4264 : Bonsoir à tous, Ma PAC Altherma B.T. EKHBH016AB6V3 associée à ERLQ014CAV3 indique un code erreur UA. Après seulement une dizaine de jours de fonctionnement, l'unité extérieure ne fonctionne pas, ce sont les résistances...
- 7. Brancher thermostat Nest E sur PAC Daikin Altherma 3 R W
- N°7448 : Bonjour. J’ai une pompe à chaleur Daikin Altherma 3 R W avec un thermostat Human Comfort Interface BRC1HHDAW. Je souhaiterais remplacer ce thermostat par un thermostat Nest E. Pourriez-vous m’indiquer les bons...
- 8. Problème cycle court PAC Daikin air air
- N°2322 : Bonjour à tous. Je suis tombé par hasard sur ce forum, et j'ai vu quelques soucis idem aux miens. Je dispose d'un bi split Daikin, une unité à l’étage pour la mezzanine "ftxs20k" et une au rez de chaussée pour tout le...
- 9. Fonctionnement clim Daikin RZQG100L9V1 avec thermostat Delta Dore
- N°4325 : Bonjour. Suite à l'installation d'une clim gainable Daikin RZQG100L9V1 Mono et de thermostat Delta Dore dans les chambres je me pose des questions sur leurs utilités. En effet si je règle la température à 20 degrés dans la...
- 10. Problème clim gainable Daikin
- N°6594 : Bonjour, J'ai un souci (gros) avec mon installation de chauffage Clim gainable Daikin qui ne veut plus démarrer. L'unité intérieure est de type FHYB60FKV1 et date de l'année 2002 (approximativement). Elle fonctionnait très...
- 11. Clim Daikin Airzone air froid début de ventilation en mode chaud
- N°5880 : Bonsoir. J'ai une clim gainable Daikin FBA125A / RZASG125MY1+ Airzone, gaines isolation 25mm ouate en comble non isolée. En mode chauffage lorsque la température de consigne est dépassée le groupe se met en service et le...
Informations sur le forum Climatisation
Informations sur le moteur du forum Mentions légalesMentions légales :Le contenu, textes, images, illustrations sonores, vidéos, photos, animations, logos et autres documents constituent ensemble une œuvre protégée par les lois en vigueur sur la propriété intellectuelle (article L.122-4).
Aucune exploitation commerciale ou non commerciale même partielle des données qui sont présentées sur ce site ne pourra être effectuée sans l'accord préalable et écrit de la SARL Bricovidéo.
Toute reproduction même partielle du contenu de ce site et de l'utilisation de la marque Bricovidéo sans autorisation sont interdites et donneront suite à des poursuites. >> Lire la suite










