Problème code erreur C9 clim Daikin FTX35JV1NB
Actuellement
10 350
questions dans le
forum climatisation
2148
Question dépannage climatisation : Problème code erreur C9 clim Daikin FTX35JV1NB
Bonjour.
Je viens de changer ma carte électronique sur une clim Daikin FTX35JV1NB et j'ai le code d'erreur suivant C9, alors je voudrais savoir ce que veut dire Incorrection de sensor de température à l'appel d'air.
Merci.
Je viens de changer ma carte électronique sur une clim Daikin FTX35JV1NB et j'ai le code d'erreur suivant C9, alors je voudrais savoir ce que veut dire Incorrection de sensor de température à l'appel d'air.
Merci.
02 octobre 2013 à 15:56
Conseil dépannage 1 clim Daikin
Problème code erreur C9 clim Daikin FTX35JV1NB
Bonsoir et bonne soirée à tous.
Vérifiez que vous n'ayez pas omis de remettre la sonde de reprise sur votre nouvelle carte.
Sinon enlevez la broche et remettez la c'est sûrement un faux contact.
Cordialement.
Adelclimatisation
Vérifiez que vous n'ayez pas omis de remettre la sonde de reprise sur votre nouvelle carte.
Sinon enlevez la broche et remettez la c'est sûrement un faux contact.
Cordialement.
Adelclimatisation
02 octobre 2013 à 20:02
Conseil dépannage 2 clim Daikin
Problème code erreur C9 clim Daikin FTX35JV1NB
Re bonsoir, merci pour la réponse.
Le problème est que j'ai changé la carte parce que avec l'ancienne tout fonctionnait sauf que le ventilateur l'ui ne s’arrêtait pas quand je coupais la clim.
J'ai fait un test d'erreur et pas d'erreur affiché sur la télécommande après avoir fait le tour de tout les codes sur la télécommande les sondes sont bien remonté, donc je change de carte avec une que j'ai acheté d'occase dont le vendeur ma certifié être en bon état de marche et la plus rien ne fonctionne elle s'allume ,la diode clignote,donc je fait un test avec la télécommande et elle me détecte erreur C9 ce que je n'ai pas avec l'ancienne carte bizarre non ?
J'ai interchangé plusieurs fois les cartes alors alors pour les faux contact je ne pense pas.
Cordialement.
rolandinino
Le problème est que j'ai changé la carte parce que avec l'ancienne tout fonctionnait sauf que le ventilateur l'ui ne s’arrêtait pas quand je coupais la clim.
J'ai fait un test d'erreur et pas d'erreur affiché sur la télécommande après avoir fait le tour de tout les codes sur la télécommande les sondes sont bien remonté, donc je change de carte avec une que j'ai acheté d'occase dont le vendeur ma certifié être en bon état de marche et la plus rien ne fonctionne elle s'allume ,la diode clignote,donc je fait un test avec la télécommande et elle me détecte erreur C9 ce que je n'ai pas avec l'ancienne carte bizarre non ?
J'ai interchangé plusieurs fois les cartes alors alors pour les faux contact je ne pense pas.
Cordialement.
rolandinino
02 octobre 2013 à 23:13
Conseil dépannage 3 clim Daikin
Problème code erreur C9 clim Daikin FTX35JV1NB
Bonjour et bonne journée à tous.
Le C9 est bien un défaut de sonde, précisément la sonde d'entrée d'air (la sonde de température d'air ambiant si vous préférez).
Alors soit la sonde a un problème réel, soit un problème fictif du genre vous avez un peu trop tiré dessus pour l'enlever donc les fils ne font plus contact lorsque la fiche est dans son emplacement sur la carte.
Voici un test à faire si vous n'avez pas de multimètre (pour mesurer la valeur ohmique de la sonde) : vous interchangez cette sonde avec une autre "mettre cette sonde à l'emplacement d'une autre et inversement".
Si le code défaut change alors c'est bien la sonde, s'il persiste alors c'est la nouvelle carte qui a un problème.
Cordialement.
Adelclimatisation
Le C9 est bien un défaut de sonde, précisément la sonde d'entrée d'air (la sonde de température d'air ambiant si vous préférez).
Alors soit la sonde a un problème réel, soit un problème fictif du genre vous avez un peu trop tiré dessus pour l'enlever donc les fils ne font plus contact lorsque la fiche est dans son emplacement sur la carte.
Voici un test à faire si vous n'avez pas de multimètre (pour mesurer la valeur ohmique de la sonde) : vous interchangez cette sonde avec une autre "mettre cette sonde à l'emplacement d'une autre et inversement".
Si le code défaut change alors c'est bien la sonde, s'il persiste alors c'est la nouvelle carte qui a un problème.
Cordialement.
Adelclimatisation
03 octobre 2013 à 07:17
Conseil dépannage 4 clim Daikin
Problème code erreur C9 clim Daikin FTX35JV1NB
Bonjour et bonne journée à tous.
Voilà j'ai testé les 2 sondes elles sont ok, ce que j'ai fait j'ai déconnecté les sondes j'ai branché un ohmmètre sur les fils et en les chauffant avec les doigts la valeur monte donc je suppose que c'est ok et toujours la même erreur donc j'ai remis la vieille carte qui me donne 0 erreur et j'ai débranché les sondes là elle me donne la même erreur que l'autre ceci dit sur ma vieille carte tout fonctionne le chaud et le froid elle démarre normalement sauf que je me suis aperçu qu'il manque du gaz parce qu'en mode froid elle fait de l'eau à l'ui et aussi comme je l'ai dit avant quand j’arrête la clim celle-ci continue de ventiler à l’unité intérieure, quant à l'unité exterieur elle s’arrête, j'ai lu sur le site que ça pourrait être dû au transistor de réglage du ventilateur mais le problème c'est que je ne sais pas où il se trouve sur la carte parce qu'en cas je le change avec celui de la nouvelle carte qui elle apparemment ne fonctionne pas.
Si quelqu’un peut me renseigner sur ce transistor je lui en serai reconnaissant. Merci.
Cordialement.
Rolandinino
Voilà j'ai testé les 2 sondes elles sont ok, ce que j'ai fait j'ai déconnecté les sondes j'ai branché un ohmmètre sur les fils et en les chauffant avec les doigts la valeur monte donc je suppose que c'est ok et toujours la même erreur donc j'ai remis la vieille carte qui me donne 0 erreur et j'ai débranché les sondes là elle me donne la même erreur que l'autre ceci dit sur ma vieille carte tout fonctionne le chaud et le froid elle démarre normalement sauf que je me suis aperçu qu'il manque du gaz parce qu'en mode froid elle fait de l'eau à l'ui et aussi comme je l'ai dit avant quand j’arrête la clim celle-ci continue de ventiler à l’unité intérieure, quant à l'unité exterieur elle s’arrête, j'ai lu sur le site que ça pourrait être dû au transistor de réglage du ventilateur mais le problème c'est que je ne sais pas où il se trouve sur la carte parce qu'en cas je le change avec celui de la nouvelle carte qui elle apparemment ne fonctionne pas.
Si quelqu’un peut me renseigner sur ce transistor je lui en serai reconnaissant. Merci.
Cordialement.
Rolandinino
03 octobre 2013 à 13:38
Conseil dépannage 5 clim Daikin
Problème code erreur C9 clim Daikin FTX35JV1NB
Bonjour.
Pour qu'on vous en dise plus, il faudrait que vous postiez 2 photos, recto et verso, de votre carte.
Cordialement, Dom.
Pour qu'on vous en dise plus, il faudrait que vous postiez 2 photos, recto et verso, de votre carte.
Cordialement, Dom.
03 octobre 2013 à 22:34
Conseil dépannage 7 clim Daikin
Problème code erreur C9 clim Daikin FTX35JV1NB
Bonsoir.
Fort bien. Pour m'aider un peu, comment s'appelle le connecteur qui part alimenter le moteur de la turbine? J'aurais tendance à dire S1. Si c'est bien cela, qu'est-il écrit sur le composant noir à droite de la bobine en GROS fil? Car il semblerait que ce soit ce circuit qui régule la vitesse... La bobine précitée est un antiparasite typique des sorties de hacheurs à triac, le circuit en contient sûrement un.
Cordialement, Dom.
Fort bien. Pour m'aider un peu, comment s'appelle le connecteur qui part alimenter le moteur de la turbine? J'aurais tendance à dire S1. Si c'est bien cela, qu'est-il écrit sur le composant noir à droite de la bobine en GROS fil? Car il semblerait que ce soit ce circuit qui régule la vitesse... La bobine précitée est un antiparasite typique des sorties de hacheurs à triac, le circuit en contient sûrement un.
Cordialement, Dom.
04 octobre 2013 à 19:42
Conseil dépannage 8 clim Daikin
Problème code erreur C9 clim Daikin FTX35JV1NB
Bonsoir et merci pour la réponse rapide.
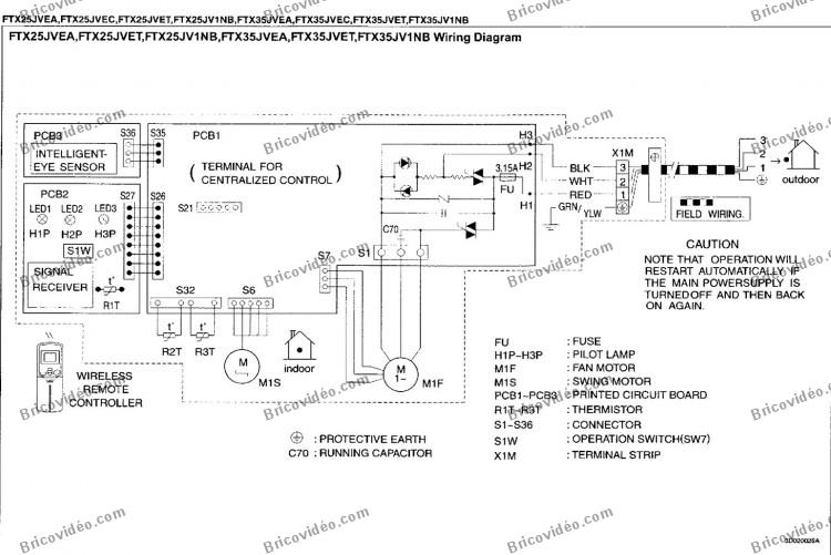
Effectivement c'est bien le connecteur S1 et le connecteur S6 le moteur à 6 fils.
Cordialement.
rolandinino
Effectivement c'est bien le connecteur S1 et le connecteur S6 le moteur à 6 fils.
Cordialement.
rolandinino
04 octobre 2013 à 20:01
Conseil dépannage 9 clim Daikin
Problème code erreur C9 clim Daikin FTX35JV1NB
Re-bonsoir.
Excusez-moi je me suis trompé ce n'est pas le connecteur S6, celui-ci est celui des sondes, c'est le connecteur S7 qui va au moteur et aussi le S1, ce qui est inscrit sur la bobine c : SHZ / N°382193 / 1.5 µ F /4 1 0 V A C
Nichicon / 9 9 Z D.
Cordialement.
Rolandinino
Excusez-moi je me suis trompé ce n'est pas le connecteur S6, celui-ci est celui des sondes, c'est le connecteur S7 qui va au moteur et aussi le S1, ce qui est inscrit sur la bobine c : SHZ / N°382193 / 1.5 µ F /4 1 0 V A C
Nichicon / 9 9 Z D.
Cordialement.
Rolandinino
04 octobre 2013 à 20:41
Conseil dépannage 10 clim Daikin
Problème code erreur C9 clim Daikin FTX35JV1NB
Bonjour.
Bon, cela m'apprendra à ne pas mettre de photo dans ce genre de cas! Vous avez reproduit les inscriptions sur un gros condensateur (pas une bobine), lequel n'est pas à droite d'une bobine. Je vous mets donc un extrait de votre photo avec le circuit à lire : celui avec le X, qui est bien à droite de la bobine en gros fil. Désolé de ne pas avoir été suffisamment clair, je ne sais jamais trop si mes interlocuteurs sont à l'aise ou non en électronique.
Le connecteur S7 est le retour tachymétrique du moteur : à chaque tour effectué par le moteur, une impulsion est délivrée sur le fil central pour informer le microP. Les 2 autres fils sont la masse (0V) et une tension continue (5 ou 12V) générée localement par la résistance R6 et la diode zener ZD1, pour alimenter le capteur contenu dans le moteur. Quant au connecteur S1, c'est la puissance : les 2 enroulements du moteur et leur commun .
Le condensateur dont vous avez donné la carte d'identité sert à déphaser le courant dans l'un des 2 enroulements du moteur. Il n'est pas incriminable dans votre cas.
Cordialement, Dom.

Bon, cela m'apprendra à ne pas mettre de photo dans ce genre de cas! Vous avez reproduit les inscriptions sur un gros condensateur (pas une bobine), lequel n'est pas à droite d'une bobine. Je vous mets donc un extrait de votre photo avec le circuit à lire : celui avec le X, qui est bien à droite de la bobine en gros fil. Désolé de ne pas avoir été suffisamment clair, je ne sais jamais trop si mes interlocuteurs sont à l'aise ou non en électronique.
Le connecteur S7 est le retour tachymétrique du moteur : à chaque tour effectué par le moteur, une impulsion est délivrée sur le fil central pour informer le microP. Les 2 autres fils sont la masse (0V) et une tension continue (5 ou 12V) générée localement par la résistance R6 et la diode zener ZD1, pour alimenter le capteur contenu dans le moteur. Quant au connecteur S1, c'est la puissance : les 2 enroulements du moteur et leur commun .
Le condensateur dont vous avez donné la carte d'identité sert à déphaser le courant dans l'un des 2 enroulements du moteur. Il n'est pas incriminable dans votre cas.
Cordialement, Dom.

05 octobre 2013 à 01:46
Conseil dépannage 11 clim Daikin
Problème code erreur C9 clim Daikin FTX35JV1NB
Bonjour.
Voilà je crois que c'est le bon. J'ai dû le dessouder car on ne voyait pas les inscriptions vu qu'il était caché par la bobine.
Merci et excusez-moi si je n'ai pas bien compris ce que vous me demandiez.
Cordialement.
Rolandinino
Voici les photos.
Pour agrandir les images, cliquez dessus.


Voilà je crois que c'est le bon. J'ai dû le dessouder car on ne voyait pas les inscriptions vu qu'il était caché par la bobine.
Merci et excusez-moi si je n'ai pas bien compris ce que vous me demandiez.
Cordialement.
Rolandinino
Voici les photos.
Pour agrandir les images, cliquez dessus.


05 octobre 2013 à 13:41
Conseil dépannage 14 clim Daikin
Problème code erreur C9 clim Daikin FTX35JV1NB
Bonjour,
Merci pour le schéma et la vue éclatée, mais ça ne me dit pas si c'est la pièce que j'ai dessoudée qui est défectueuse ou si c'est le cas où puis-je la trouver (l'acheter) et comment ça s'appelle cette petite bête.
Merci encore de vos réponses.
Cordialement.
rolandinino
Merci pour le schéma et la vue éclatée, mais ça ne me dit pas si c'est la pièce que j'ai dessoudée qui est défectueuse ou si c'est le cas où puis-je la trouver (l'acheter) et comment ça s'appelle cette petite bête.
Merci encore de vos réponses.
Cordialement.
rolandinino
05 octobre 2013 à 16:02
Conseil dépannage 15 clim Daikin
Problème code erreur C9 clim Daikin FTX35JV1NB
Bonjour.
Merci pour les photos et à PL pour ses docs. La pièce est comme je le pensais l'élément qui envoit l'énergie au moteur. C'est un "relais statique", qui ne comprend que des semi-conducteurs, à savoir une diode émettrice de lumière, un phototransistor et un triac. Quand une impulsion est appliquée sur l'entrée basse tension, la diode (LED) émet une lumière, le phototransistor la capte et déclenche le triac. Et ce chaque demi-période secteur. C'est le microP qui commande la diode. La liaison lumineuse permet l'isolation électrique totale entre les 2 circuits.
Si vous voulez permuter cette pièce entre les 2 cartes, cela peut résoudre votre problème, mais c'est loin d'être sûr. Car la panne peut venir aussi du microP ou d'un autre composant entre le microP et le "relais". Tenez-nous au courant.
Cordialement, Dom.
Merci pour les photos et à PL pour ses docs. La pièce est comme je le pensais l'élément qui envoit l'énergie au moteur. C'est un "relais statique", qui ne comprend que des semi-conducteurs, à savoir une diode émettrice de lumière, un phototransistor et un triac. Quand une impulsion est appliquée sur l'entrée basse tension, la diode (LED) émet une lumière, le phototransistor la capte et déclenche le triac. Et ce chaque demi-période secteur. C'est le microP qui commande la diode. La liaison lumineuse permet l'isolation électrique totale entre les 2 circuits.
Si vous voulez permuter cette pièce entre les 2 cartes, cela peut résoudre votre problème, mais c'est loin d'être sûr. Car la panne peut venir aussi du microP ou d'un autre composant entre le microP et le "relais". Tenez-nous au courant.
Cordialement, Dom.
05 octobre 2013 à 16:32
Conseil dépannage 16 clim Daikin
Problème code erreur C9 clim Daikin FTX35JV1NB
Bonjour à tous.
Merci pour toutes vos infos.
Voilà j'ai réussi à remettre en route la carte que j'avais acheté d’occasion, je m'explique le problème de cette carte était qu'elle m'indiquait le code C9, mais cela venait que le vendeur de cette carte avait coupé les fils de la petite carte de commande qui va en façade de l'UI, celle avec les diodes, donc j'ai dû dessouder tous ces fils et recâbler avec des fils et je me suis aperçu avec une loupe qu'une soudure touchait légèrement une autre, donc je l'ai refaite et là Bingo ça fonctionne parfaitement, plus d'erreur la clim fonctionne, donc je ne peux pas permuter le relais statique avec l'ancienne carte mais j'aurai bien voulu la réparer tout de même, mais bon j'en ai une qui fonctionne c'est déjà pas mal, je la garde pour les pièces on ne sait jamais. Par contre maintenant il va falloir que je trouve quelqu'un pour me remettre du gaz R22, j'ai lu qu'il était interdit depuis 2010, si vous pouvez me renseigner là dessus ou connaitre quelqu'un dans le Var précisément au Luc en Provence.
Je vous en remercie d'avance.
Cordialement.
rolandinino
Merci pour toutes vos infos.
Voilà j'ai réussi à remettre en route la carte que j'avais acheté d’occasion, je m'explique le problème de cette carte était qu'elle m'indiquait le code C9, mais cela venait que le vendeur de cette carte avait coupé les fils de la petite carte de commande qui va en façade de l'UI, celle avec les diodes, donc j'ai dû dessouder tous ces fils et recâbler avec des fils et je me suis aperçu avec une loupe qu'une soudure touchait légèrement une autre, donc je l'ai refaite et là Bingo ça fonctionne parfaitement, plus d'erreur la clim fonctionne, donc je ne peux pas permuter le relais statique avec l'ancienne carte mais j'aurai bien voulu la réparer tout de même, mais bon j'en ai une qui fonctionne c'est déjà pas mal, je la garde pour les pièces on ne sait jamais. Par contre maintenant il va falloir que je trouve quelqu'un pour me remettre du gaz R22, j'ai lu qu'il était interdit depuis 2010, si vous pouvez me renseigner là dessus ou connaitre quelqu'un dans le Var précisément au Luc en Provence.
Je vous en remercie d'avance.
Cordialement.
rolandinino
05 octobre 2013 à 17:30
Conseil dépannage 17 clim Daikin
Problème code erreur C9 clim Daikin FTX35JV1NB
Bonjour.
Il faut détenir une attestation de capacité depuis le 04/07/2009, pour avoir l'autorisation d'acheter du gaz frigorigène quel qu'il soit, de plus le R22 n'existe plus, il y a un produit de remplacement le R22T qui perd un peu en performance, mais est autorisé à la vente jusqu'au 31/12/2014.
Après cette date = terminé. Vous devez passer par une société habilitée. Il faut savoir aussi que le technicien est autorisé à la manipulation des fluides si lui il a une attestation d’aptitude depuis le 04/07/2011.
Toute fraude est passible d'une amende de 1500 à 15000€, et attention il y a même de la traque sur internet, par la DGCRF, par ex.
Il faut détenir une attestation de capacité depuis le 04/07/2009, pour avoir l'autorisation d'acheter du gaz frigorigène quel qu'il soit, de plus le R22 n'existe plus, il y a un produit de remplacement le R22T qui perd un peu en performance, mais est autorisé à la vente jusqu'au 31/12/2014.
Après cette date = terminé. Vous devez passer par une société habilitée. Il faut savoir aussi que le technicien est autorisé à la manipulation des fluides si lui il a une attestation d’aptitude depuis le 04/07/2011.
Toute fraude est passible d'une amende de 1500 à 15000€, et attention il y a même de la traque sur internet, par la DGCRF, par ex.
06 octobre 2013 à 09:02
Conseil dépannage 18 clim Daikin
Problème code erreur C9 clim Daikin FTX35JV1NB
Bonjour, et bonne journée à tous.
Pour compléter la réponse de PL, le r22t est grosso modo du r22 retraite (du r22 ayant déjà servie et vu que en Europe on en fabrique plus, donc on recycle du r22 qui a été récupéré sur d'autres installations, en l'ayant préalablement traité bien évidement).
A partir de 2015 il ne sera plus possible de recharger une installation en r22, bien qu'elle soit opérationnelle, et qu'elle n'a aucun autre problème que celui du manque de fluide.
Comment arrivez-vous à déterminer que c'est un manque de gaz ? Ce n'est pas parce que votre clim produit plus de condensats qu'auparavant, que c'est obligatoirement synonyme de manque de gaz.
Bien d'autres dysfonctionnements auront les mêmes symptômes. D’ailleurs un manque de charge se traduira plus par du givre qu'un surplus de condensation. Je m'explique, en règle générale, la clim est prévue pour fonctionner avec une pression d'évaporation supérieure à 0Cº (à l'exception de Mitsubishi qui eux cherchent pile poil 0ºC) donc quoi d'anormal si condensation il y a.
Maintenant disons que votre installation a perdu du gaz, obligatoirement la température d’évaporation sera inférieure au 0ºC, par conséquent les molécules d'humidité contenues dans l'air vont être piégées et gelées au niveau de l'ui .
En fonction du taux de perte de gaz votre ui peut facilement devenir un bloc de glace. En revanche une installation qui n'a aucune perte de gaz peut se mettre à produire plus de condensat après quelques années de bons et loyaux services parce que tout simplement l'isolation des tuyaux s'est dégradée au fil du temps.
L'air actuellement est plus humide que précédemment, le détendeur qui ne remplit pas convenablement sa fonction, écart trop important entre la consigne et la température extérieure.
Votre ui n’étant plus toute jeune un coup de nettoyage et rinçage évitera ce problème, bref les pistes sont nombreuses avant d'arriver à diagnostiquer un manque de charge. Faites intervenir un frigolo qui vérifiera les raisons et si c'est un manque de charge, alors sachant que le r22 ce sera non en 2015, et dans la mesure que votre clim est assez performante, demandez à celui-ci qu'il fasse une recherche de fuite, une fois localisée et réparée, demandez lui qu'il pressionne l'installation à 30 bars. Ensuite qu'il la laisse pressionner au moins 2 jours.
A son retour, si l'installation est toujours à 30 bars alors un bon et long tirage au vide puis recharge et mise en route. Ainsi vous repartez avec une installation qui pourra tenir quelques années supplémentaire, sans avoir l'épée de Damoclès au dessus de sa tête au delà de 2015.
Cordialement.
Adelclimatisation
Pour compléter la réponse de PL, le r22t est grosso modo du r22 retraite (du r22 ayant déjà servie et vu que en Europe on en fabrique plus, donc on recycle du r22 qui a été récupéré sur d'autres installations, en l'ayant préalablement traité bien évidement).
A partir de 2015 il ne sera plus possible de recharger une installation en r22, bien qu'elle soit opérationnelle, et qu'elle n'a aucun autre problème que celui du manque de fluide.
Comment arrivez-vous à déterminer que c'est un manque de gaz ? Ce n'est pas parce que votre clim produit plus de condensats qu'auparavant, que c'est obligatoirement synonyme de manque de gaz.
Bien d'autres dysfonctionnements auront les mêmes symptômes. D’ailleurs un manque de charge se traduira plus par du givre qu'un surplus de condensation. Je m'explique, en règle générale, la clim est prévue pour fonctionner avec une pression d'évaporation supérieure à 0Cº (à l'exception de Mitsubishi qui eux cherchent pile poil 0ºC) donc quoi d'anormal si condensation il y a.
Maintenant disons que votre installation a perdu du gaz, obligatoirement la température d’évaporation sera inférieure au 0ºC, par conséquent les molécules d'humidité contenues dans l'air vont être piégées et gelées au niveau de l'ui .
En fonction du taux de perte de gaz votre ui peut facilement devenir un bloc de glace. En revanche une installation qui n'a aucune perte de gaz peut se mettre à produire plus de condensat après quelques années de bons et loyaux services parce que tout simplement l'isolation des tuyaux s'est dégradée au fil du temps.
L'air actuellement est plus humide que précédemment, le détendeur qui ne remplit pas convenablement sa fonction, écart trop important entre la consigne et la température extérieure.
Votre ui n’étant plus toute jeune un coup de nettoyage et rinçage évitera ce problème, bref les pistes sont nombreuses avant d'arriver à diagnostiquer un manque de charge. Faites intervenir un frigolo qui vérifiera les raisons et si c'est un manque de charge, alors sachant que le r22 ce sera non en 2015, et dans la mesure que votre clim est assez performante, demandez à celui-ci qu'il fasse une recherche de fuite, une fois localisée et réparée, demandez lui qu'il pressionne l'installation à 30 bars. Ensuite qu'il la laisse pressionner au moins 2 jours.
A son retour, si l'installation est toujours à 30 bars alors un bon et long tirage au vide puis recharge et mise en route. Ainsi vous repartez avec une installation qui pourra tenir quelques années supplémentaire, sans avoir l'épée de Damoclès au dessus de sa tête au delà de 2015.
Cordialement.
Adelclimatisation
06 octobre 2013 à 11:04
Conseil dépannage 19 clim Daikin
Problème code erreur C9 clim Daikin FTX35JV1NB
Bonjour.
En fait je me suis mal expliqué ce que je cherche c'est un pro qui détient du R22 et qui pourrait me remettre un peu de celui-ci pas question de le faire moi-même par contre j'ai vu sur un site qu'il y avait du R422 D qui remplaçait le R22.
Qu'en pensez-vous, gaz vendu par bouteille de 1 kg avec mano pour remplissage ???
Merci de votre réponse.
Cordialement.
Rolandinino
En fait je me suis mal expliqué ce que je cherche c'est un pro qui détient du R22 et qui pourrait me remettre un peu de celui-ci pas question de le faire moi-même par contre j'ai vu sur un site qu'il y avait du R422 D qui remplaçait le R22.
Qu'en pensez-vous, gaz vendu par bouteille de 1 kg avec mano pour remplissage ???
Merci de votre réponse.
Cordialement.
Rolandinino
06 octobre 2013 à 11:47
Conseil dépannage 20 clim Daikin
Problème code erreur C9 clim Daikin FTX35JV1NB
Bonsoir.
Un pro ne peut faire un complément de charge c'est INTERDIT ! LA LIMITATION SUR LA ROUTE EST 90 pas 130 km.
En principe il faut tout récupérer de votre installation puis mettre la totalité en poids et recommandations constructeur, avec le nouveau gaz, mais s'il y a un complément de charge il y a surement une fuite voire plusieurs.
Comme je l'ai dit c'est hors la loi d'acheter par internet ou à l’arrache ou magouille avec un technicien, celui-ci risque de perdre son habilitation.
à vous de voir ! 
Un pro ne peut faire un complément de charge c'est INTERDIT ! LA LIMITATION SUR LA ROUTE EST 90 pas 130 km.
En principe il faut tout récupérer de votre installation puis mettre la totalité en poids et recommandations constructeur, avec le nouveau gaz, mais s'il y a un complément de charge il y a surement une fuite voire plusieurs.
Comme je l'ai dit c'est hors la loi d'acheter par internet ou à l’arrache ou magouille avec un technicien, celui-ci risque de perdre son habilitation.
à vous de voir ! 
06 octobre 2013 à 17:57
Conseil dépannage 21 clim Daikin
Problème code erreur C9 clim Daikin FTX35JV1NB
Re, adelclimatisation a donné une réponse complémentaire, merci. 

06 octobre 2013 à 18:03
Conseil dépannage 22 clim Daikin
Invité

Problème code erreur C9 clim Daikin FTX35JV1NB
Invité
Changez de clim, j'ai fait installer des clim DAIKIN parce-que je pensais que c’était une bonne marque, or depuis l'installation en février 2015 elle ne fonctionne pas, le fournisseur retourne la faute à Daikin mais depuis un grand nombre de techniciens sont venus et ça ne marche toujours pas !
Cet hiver je me suis gelé et là c'est la canicule je meurs de chaud et en plus j'ai un nouveau né...
Cet hiver je me suis gelé et là c'est la canicule je meurs de chaud et en plus j'ai un nouveau né...
18 juillet 2015 à 13:06
Pour poser une réponse, vous devez être identifié.
Si vous ne possédez pas de compte, créez-en un ICI.
Si vous ne possédez pas de compte, créez-en un ICI.
Questions apparentées dans le forum Climatisation
- 1. Problème code erreur C9 sur clim Daikin
- N°9308 : Bonjour. J'ai ma climatisation FTXS35CVMB qui clignote et le code C9 s'affiche sur ma télécommande Daikin. Je n'arrive pas à trouver la sonde d'ambiance sur ma carte si c'est celle que je pense je n'arrive pas à la...
- 2. PAC Daikin code erreur E5 mise en sécurité
- N°2208 : Bonsoir, Voici les références de l'unité extérieure Daikin / Airmat AMCH 100 ADW 1... triphasé. Avant la panne : - depuis 4 jours un bruit très fort en fin de cycle, ressemblant à un petit avion qui atterrit - celle-ci...
- 3. PAC Daikin RZQ125 code erreur U4 résolu U2 apparait
- N°5129 : Bonjour à tous, J'ai déjà arpenté les sujets et lu quelques topics sur ce code erreur. Toutefois je crée un nouveau sujet pour expliquer l'enchainement de ma panne. J'ai eu un code erreur U4 (prob de communication UI/UE)...
- 4. Code erreur L3 climatisation réversible Daikin
- N°1764 : Bonjour, J'ai ma clim réversible Daikin qui me joue de mauvais tours à chaque démarrage le code L3 apparaît sur la télécommande je sait que ce code signifie surchauffe du compresseur bref plus de chauffage :sweat:...
- 5. Code erreur U0 clim Daikin 3MXS52E3V1B
- N°6406 : Bonsoir à tous, Je vous demande votre aide suite à la mise en sécurité de l'unité. J'ai un contrat d'entretien et en juillet le technicien est passé, a dépoussiéré les filtres, fait des vérifications (2 unités pour 7...
- 6. Pompe à chaleur Daikin code erreur E7
- N°9328 : Bonjour. Mes parents possèdent une PAC Air/Eau de chez Daikin. Le code E7 est apparu. Problème sur l'unité extérieure normalement et plus spécifiquement sur les ventilos. Modèle unité extérieure : ERRQ014AAV1...
- 7. Code erreur UA PAC Daikin
- N°4264 : Bonsoir à tous, Ma PAC Altherma B.T. EKHBH016AB6V3 associée à ERLQ014CAV3 indique un code erreur UA. Après seulement une dizaine de jours de fonctionnement, l'unité extérieure ne fonctionne pas, ce sont les résistances...
- 8. Erreur U0 suite à remplacement carte UE Daikin 3MXM68M
- N°7471 : Bonjour. Sur mon unité extérieure Daikin 3MXM68M, on vient de me remplacer la carte suite à un défaut A5 qui dure depuis 2 ans. Quelques heures après le départ du technicien, code U0 (manque réfrigérant), même en...
- 9. Code erreur C7 Split Daikin
- N°2567 : Bonjour Problème sur un split Daikin quand j'allume avec la télécommande les volets s'ouvrent puis se referment avec un clignotement de la diode verte et code C7 assez logiquement, par contre en allumant avec...
- 10. Problème code erreur E3 pompe à chaleur air air Daikin gainable
- N°2528 : Bonjour, J'ai un problème avec ma pompe à chaleur Daikin. Elle a 5 ans. Elle chauffe mais il n'y a plus de ventilation. Elle n'affiche aucun message d'erreur mais quand j'appuie sur le bouton test de dispositif de contrôle...
Informations sur le forum Climatisation
Informations sur le moteur du forum Mentions légalesMentions légales :Le contenu, textes, images, illustrations sonores, vidéos, photos, animations, logos et autres documents constituent ensemble une œuvre protégée par les lois en vigueur sur la propriété intellectuelle (article L.122-4).
Aucune exploitation commerciale ou non commerciale même partielle des données qui sont présentées sur ce site ne pourra être effectuée sans l'accord préalable et écrit de la SARL Bricovidéo.
Toute reproduction même partielle du contenu de ce site et de l'utilisation de la marque Bricovidéo sans autorisation sont interdites et donneront suite à des poursuites. >> Lire la suite













